生产能力:50~200t/h
入料粒径:0~40mm

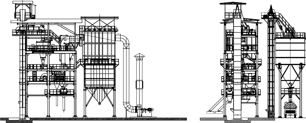
采用高度集约的落楼式全封闭布置,集高效制砂、粒型优化、石粉控制、级配调整、含水率控制、环保处理于一体,更实现了机制砂粒型、级配、含粉量等各项指标的全面提升,为砂石、水泥、混凝土产业链的发展创造新的机会和价值。
考察电话:0371-53738676

让制砂更加绿色化、全环保、智能化

适用于商混站、砂浆站、水稳站、小型砂石厂等环境
小型砂石厂
商混站
砂浆站
水稳站
我们积累了丰富的实战经验,案例现场遍及矿山、水泥、冶金、化工、建筑垃圾等领域,可以免费提供方案设计。
量身打造生产方案
质量靠谱价格优惠
量身打造生产方案
质量靠谱价格优惠
扫码关注微信公众号
考察电话:0371-53738676